
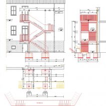
Rettungstreppe Grundschule Sollstedt
Der Grundschule in Sollstedt fehlte es an einem 2. Rettungsweg. In Form der Errichtung einer verzinkten Stahlkonstruktion wurde dieser Umstand behoben. Wir stellten den Bauantrag und führten die Ausführungsplanung sowie die Tragwerksplanung, Ausschreibung und Bauleitung aus.
Ausführungszeitraum: 2014
Auftraggeber: Landratsamt Nordhausen
Gesamtinvestition: 60.000 EUR
Auftraggeber: Landratsamt Nordhausen
Gesamtinvestition: 60.000 EUR






zu Projekten | Startseite